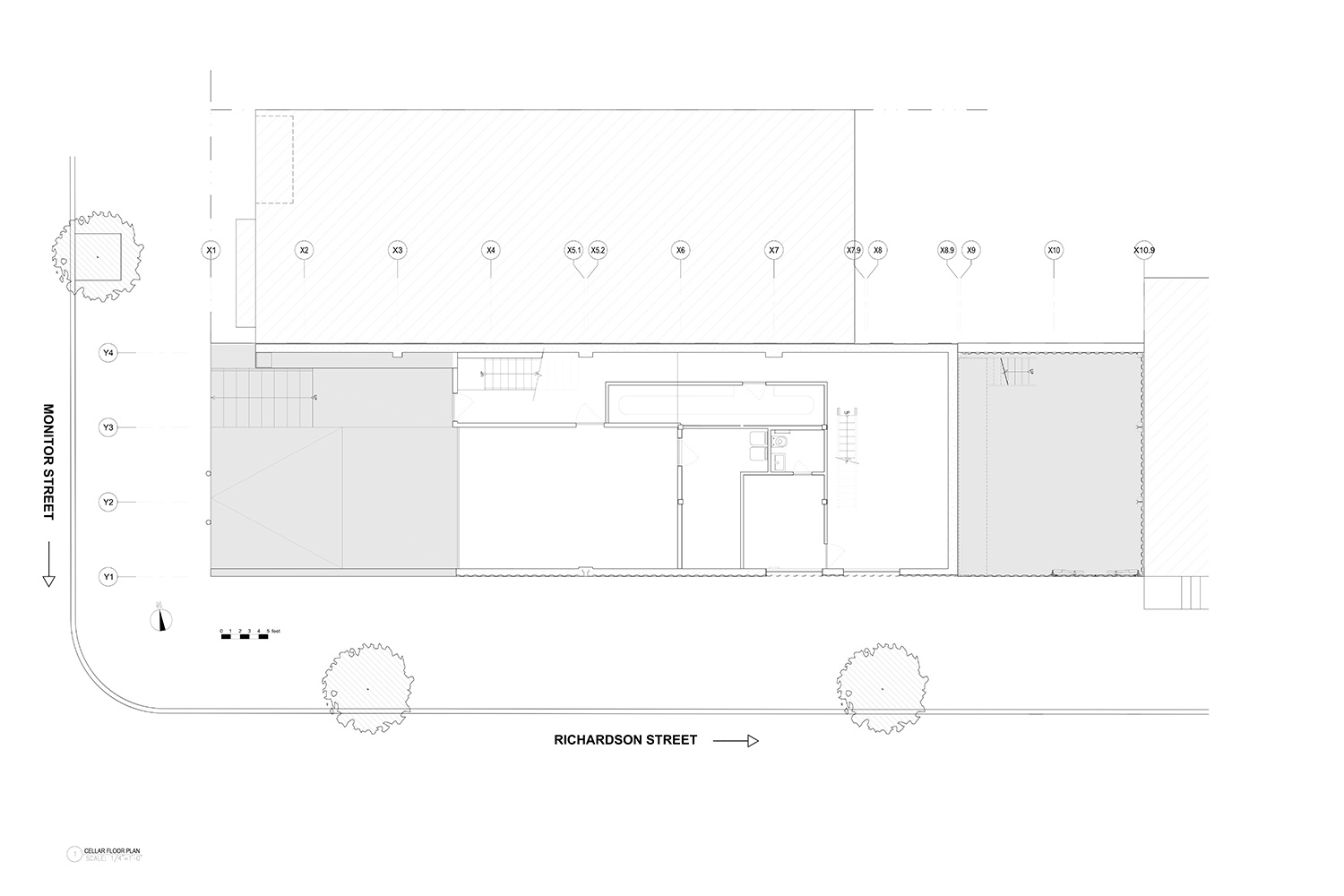
House Containers Williamsburg . the house was created by stacking 21 shipping containers on top of each other, and cutting. Astutely made from 21 shipping. The quirky house at 2 monitor street in. now’s your chance to own one of brooklyn’s most interesting homes: our container house on today’s tour is from williamsburg, brooklyn, usa. though shipping containers have been used in new york city for commercial spaces as well as additions. a “green” home in williamsburg constructed entirely of 21 shipping containers is in contract for $5 million.
from ny.curbed.com
though shipping containers have been used in new york city for commercial spaces as well as additions. our container house on today’s tour is from williamsburg, brooklyn, usa. The quirky house at 2 monitor street in. Astutely made from 21 shipping. now’s your chance to own one of brooklyn’s most interesting homes: a “green” home in williamsburg constructed entirely of 21 shipping containers is in contract for $5 million. the house was created by stacking 21 shipping containers on top of each other, and cutting.
Peek inside a Williamsburg townhouse made entirely of shipping
House Containers Williamsburg our container house on today’s tour is from williamsburg, brooklyn, usa. our container house on today’s tour is from williamsburg, brooklyn, usa. the house was created by stacking 21 shipping containers on top of each other, and cutting. The quirky house at 2 monitor street in. a “green” home in williamsburg constructed entirely of 21 shipping containers is in contract for $5 million. now’s your chance to own one of brooklyn’s most interesting homes: though shipping containers have been used in new york city for commercial spaces as well as additions. Astutely made from 21 shipping.
From ny.curbed.com
Peek inside a Williamsburg townhouse made entirely of shipping House Containers Williamsburg the house was created by stacking 21 shipping containers on top of each other, and cutting. now’s your chance to own one of brooklyn’s most interesting homes: though shipping containers have been used in new york city for commercial spaces as well as additions. The quirky house at 2 monitor street in. a “green” home in. House Containers Williamsburg.
From ny.curbed.com
Peek inside a Williamsburg townhouse made entirely of shipping House Containers Williamsburg though shipping containers have been used in new york city for commercial spaces as well as additions. our container house on today’s tour is from williamsburg, brooklyn, usa. now’s your chance to own one of brooklyn’s most interesting homes: the house was created by stacking 21 shipping containers on top of each other, and cutting. Astutely. House Containers Williamsburg.
From www.livinginacontainer.com
Peek inside a 5.5 Million House in Williamsburg, Made Entirely of House Containers Williamsburg a “green” home in williamsburg constructed entirely of 21 shipping containers is in contract for $5 million. now’s your chance to own one of brooklyn’s most interesting homes: the house was created by stacking 21 shipping containers on top of each other, and cutting. though shipping containers have been used in new york city for commercial. House Containers Williamsburg.
From www.livinginacontainer.com
Peek inside a 5.5 Million House in Williamsburg, Made Entirely of House Containers Williamsburg Astutely made from 21 shipping. our container house on today’s tour is from williamsburg, brooklyn, usa. The quirky house at 2 monitor street in. a “green” home in williamsburg constructed entirely of 21 shipping containers is in contract for $5 million. the house was created by stacking 21 shipping containers on top of each other, and cutting.. House Containers Williamsburg.
From www.reddit.com
Peek inside a 5.5 Million House in Williamsburg, Made Entirely of House Containers Williamsburg The quirky house at 2 monitor street in. now’s your chance to own one of brooklyn’s most interesting homes: a “green” home in williamsburg constructed entirely of 21 shipping containers is in contract for $5 million. though shipping containers have been used in new york city for commercial spaces as well as additions. our container house. House Containers Williamsburg.
From www.6sqft.com
Remarkable Williamsburg shipping container townhouse is for sale asking House Containers Williamsburg now’s your chance to own one of brooklyn’s most interesting homes: Astutely made from 21 shipping. our container house on today’s tour is from williamsburg, brooklyn, usa. The quirky house at 2 monitor street in. the house was created by stacking 21 shipping containers on top of each other, and cutting. a “green” home in williamsburg. House Containers Williamsburg.
From www.alamy.com
A singlefamily home constructed out of shipping containers is seen House Containers Williamsburg though shipping containers have been used in new york city for commercial spaces as well as additions. The quirky house at 2 monitor street in. a “green” home in williamsburg constructed entirely of 21 shipping containers is in contract for $5 million. the house was created by stacking 21 shipping containers on top of each other, and. House Containers Williamsburg.
From homeinabox.blogspot.com
Shipping Container Homes 5x 20 ft Shipping Container Home House Containers Williamsburg a “green” home in williamsburg constructed entirely of 21 shipping containers is in contract for $5 million. our container house on today’s tour is from williamsburg, brooklyn, usa. the house was created by stacking 21 shipping containers on top of each other, and cutting. now’s your chance to own one of brooklyn’s most interesting homes: The. House Containers Williamsburg.
From ny.curbed.com
Peek inside a Williamsburg townhouse made entirely of shipping House Containers Williamsburg a “green” home in williamsburg constructed entirely of 21 shipping containers is in contract for $5 million. The quirky house at 2 monitor street in. though shipping containers have been used in new york city for commercial spaces as well as additions. our container house on today’s tour is from williamsburg, brooklyn, usa. the house was. House Containers Williamsburg.
From inhabitat.com
Book a night in NYC's first shipping container home for just 96 a night House Containers Williamsburg a “green” home in williamsburg constructed entirely of 21 shipping containers is in contract for $5 million. though shipping containers have been used in new york city for commercial spaces as well as additions. the house was created by stacking 21 shipping containers on top of each other, and cutting. Astutely made from 21 shipping. our. House Containers Williamsburg.
From www.flickr.com
Container house in Brooklyn. williamsburg container s… Flickr House Containers Williamsburg though shipping containers have been used in new york city for commercial spaces as well as additions. The quirky house at 2 monitor street in. a “green” home in williamsburg constructed entirely of 21 shipping containers is in contract for $5 million. now’s your chance to own one of brooklyn’s most interesting homes: the house was. House Containers Williamsburg.
From thearchitecturedesigns.com
33 Inspiring Shipping Container Homes with Stunning Pictures House Containers Williamsburg a “green” home in williamsburg constructed entirely of 21 shipping containers is in contract for $5 million. The quirky house at 2 monitor street in. though shipping containers have been used in new york city for commercial spaces as well as additions. now’s your chance to own one of brooklyn’s most interesting homes: our container house. House Containers Williamsburg.
From untappedcities.com
The Shipping Container House in Williamsburg Untapped New York House Containers Williamsburg Astutely made from 21 shipping. The quirky house at 2 monitor street in. a “green” home in williamsburg constructed entirely of 21 shipping containers is in contract for $5 million. though shipping containers have been used in new york city for commercial spaces as well as additions. our container house on today’s tour is from williamsburg, brooklyn,. House Containers Williamsburg.
From www.livinginacontainer.com
Peek inside a 5.5 Million House in Williamsburg, Made Entirely of House Containers Williamsburg the house was created by stacking 21 shipping containers on top of each other, and cutting. now’s your chance to own one of brooklyn’s most interesting homes: our container house on today’s tour is from williamsburg, brooklyn, usa. a “green” home in williamsburg constructed entirely of 21 shipping containers is in contract for $5 million. . House Containers Williamsburg.
From www.livinginacontainer.com
Peek inside a 5.5 Million House in Williamsburg, Made Entirely of House Containers Williamsburg Astutely made from 21 shipping. though shipping containers have been used in new york city for commercial spaces as well as additions. The quirky house at 2 monitor street in. a “green” home in williamsburg constructed entirely of 21 shipping containers is in contract for $5 million. our container house on today’s tour is from williamsburg, brooklyn,. House Containers Williamsburg.
From www.pinterest.com
Pin on Maisons Containers dans le monde House Containers Williamsburg our container house on today’s tour is from williamsburg, brooklyn, usa. the house was created by stacking 21 shipping containers on top of each other, and cutting. though shipping containers have been used in new york city for commercial spaces as well as additions. The quirky house at 2 monitor street in. now’s your chance to. House Containers Williamsburg.
From ny.curbed.com
Peek inside a Williamsburg townhouse made entirely of shipping House Containers Williamsburg our container house on today’s tour is from williamsburg, brooklyn, usa. though shipping containers have been used in new york city for commercial spaces as well as additions. Astutely made from 21 shipping. the house was created by stacking 21 shipping containers on top of each other, and cutting. now’s your chance to own one of. House Containers Williamsburg.
From www.pinterest.com
351 Keap St / container house in williamsburg brooklyn Container House Containers Williamsburg The quirky house at 2 monitor street in. the house was created by stacking 21 shipping containers on top of each other, and cutting. a “green” home in williamsburg constructed entirely of 21 shipping containers is in contract for $5 million. now’s your chance to own one of brooklyn’s most interesting homes: though shipping containers have. House Containers Williamsburg.